Popis lokality MPP – 958 / Pražský zlom - 2025
Anketa
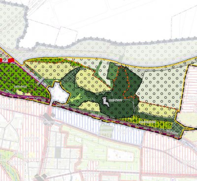
Lokalita Pražský zlom je tvořena územím v jižně orientovaném svahu vázaném na pokles v linii Pražského zlomu na pravém břehu Rokytky, s nadmořskou výškou 220–285 m. V horní zarovnané části svahu v severovýchodní části lokality se vyskytují zemědělsky obhospodařované půdní bloky a jejich díly převážně střední velikosti. Svah byl v minulosti velmi intenzivně využit k zakládání zahrádkářských osad. Součástí lokality je Přírodní památka Cihelna v Bažantnici.
Zastavitelnost: nezastavitelná
Typ struktury: krajina výrazných údolí
Využití: nezastavitelná rekreační
Stabilita: stabilizovaná
POPIS A CÍLOVÝ CHARAKTER LOKALITY
Lokalita Pražský zlom je tvořena územím v jižně orientovaném svahu vázaném na pokles v linii Pražského zlomu na pravém břehu Rokytky, s nadmořskou výškou 220–285 m. V geomorfologickém členění určuje linie Pražského zlomu hranici mezi soustavou Česká tabule a Poberounskou soustavou. Svah je tedy na rozhraní mezi soustavou Česká tabule, jejím celkem Středolabská tabule, a Poberounskou soustavou, jejím celkem Pražská plošina. V horní zarovnané části svahu v severovýchodní části lokality se vyskytují zemědělsky obhospodařované půdní bloky a jejich díly převážně střední velikosti. Svah byl v minulosti velmi intenzivně využit k zakládání zahrádkářských osad. V severozápadním cípu uvnitř lokality vymezena exkláva zastavitelného území s obytným využitím. Součástí lokality je Přírodní památka Cihelna v Bažantnici.
Chránit a posilovat cílový charakter nezastavitelné, stabilizované, rekreační lokality Pražský zlom se strukturou krajiny výrazných údolí. Lokalita je součástí krajiny vymezené v ZÚR s názvem Krajina Čakovické tabule.
Nezastavitelná stabilizovaná rekreační lokalita Pražský zlom je vymezena ve svahu v severní části Prahy. Cílem vymezení je zachovat strukturu krajiny výrazných údolí představující krajinu s vysokou dynamikou reliéfu a zachovat a posílit její vysoké přírodní a krajinné hodnoty, které ve svých vnějších projevech spoluutvářejí obraz města Prahy a které poskytují vysoce atraktivní prostředí pro rekreaci a sport pod širým nebem, při vzájemném respektování požadavků na ochranu přírody, rozvoj rekreace i lesní hospodaření. K tomu je žádoucí zachovat převážně lesnatý charakter území, zároveň však cílenými zásahy chránit biodiverzitu v nelesních částech, posílit rekreační infrastrukturu a zajistit odpovídající prostupnost zejména lesní krajinou.
300 / Využití území
Lokalita se nachází v zóně havarijního plánování objektu, který dle zákona č. 224/2015 Sb., o prevenci závažných havárií, spadá do skupiny B. Vzhledem k množství a druhům skladovaných nebezpečných látek je tento objekt potenciálním zdrojem závažné havárie.
» Přejít na článek Popis lokality MPP – 958 / Pražský zlom - 2025 na webu https://plan.praha.eu/.
Ke stažení:
Popis lokality MPP – 958 / Pražský zlom – 2025, 1 MB;
Odůvodnění pro lokalitu – 958 / Pražský zlom – 2025, 343 kB;
Lokalita MPP – 958 / Pražský zlom – 2025, 221 kB
Ke stažení: Popis lokalit upraveného Metropolitního plánu - Praha 14 (rok 2025)
Metropolitní plán je územní plán hlavního města Prahy. Územní plán určuje, jak se bude město v následujících deseti až dvaceti letech rozvíjet, kde se smí a nesmí stavět apod.
Metropolitní plán rozděluje území hlavního města na více než 700 lokalit, každá spadá do jednoho ze 13 typů zastavitelných území (mezi nimi je například historická část města, bloková struktura či průmyslové areály). Pokud má lokalita v plánu písmeno "Z", znamená to, že je zastavitelná. Případná nová zástavba však musí respektovat charakter lokality. Každá lokalita dále spadá do jednoho ze čtyř způsobů využití - obytný, rekreační, produkční nebo přírodní. Plán tak určuje, jaká činnost zde může a nemůže probíhat.
Výstavbu v jednotlivých lokalitách bude nově omezovat výšková regulace, která jasně určí, jaká bude maximální povolená výška budov. Ta vychází z výšky stávající zástavby.
- Jak připomínkovat Metropolitní plán, 2 MB
- Metropolitní plán - Legenda - Členění území, , 166 kB
- Metropolitní plán - Legenda - Infrastruktura, Doprava, 163 kB
- Metropolitní plán - Legenda - Energie a kódy prvků, 137 kB
- Návod ke čtení krycích listů odůvodnění, 1 MB
- Návod ke čtení krycích listů závazných regulativů, 3 MB
- Popis lokality MPP - 307 / Nad Kyjským Rybníkem, 4 MB
- Odůvodnění pro lokalitu 307 / Nad Kyjským Rybníkem, 344 kB, 344 kB
- Popis lokality MPP - 202 / Staré Kyje, 4 MB
- Odůvodnění pro lokalitu - 202 / Staré Kyje, 347 kB
- Popis lokality 203 / Aloisov, 4 MB
- Odůvodnění pro lokalitu - 203 / Aloisov, 344 kB
- Popis lokality - 204 / Hloubětín, 4 MB
- Odůvodnění pro lokalitu 204 / Hloubětín, 345 kB
- Popis lokality MPP - 502 / Sídliště Lehovec, 4 MB
- Odůvodnění pro lokalitu - 502 / Sídliště Lehovec, 345 kB
- Popis lokality MPP - 503 / Sídliště Černý Most, 1 MB
- Odůvodnění pro lokalitu - 503 / Sídliště Černý Most, 347 kB
- Popis lokality MPP - 512 / Sídliště Hloubětín, 3 MB
- Odůvodnění pro lokalitu - 512 / Sídliště Hloubětín, 345 kB
- Popis lokality MPP - 308 / Rajská zahrada, 3 MB
- Odůvodnění pro lokalitu - 308 / Rajská zahrada, 344 kB
- Odůvodnění pro lokalitu - 306 / Kyje, 347 kB
- Popis lokality - 306 / Kyje, 3 MB
- Popis lokality - 142 / Jahodnice, 3 MB
- Odůvodnění pro lokalitu - 142 / Jahodnice, 348 kB
- Popis lokality MPP - 375 / Hostavice, 4 MB
- Odůvodnění pro lokalitu - 375 / Hostavice, 346 kB
- Popis lokality MPP - 143 / Hutě, 1 MB
- Odůvodnění pro lokalitu - 143 / Hutě, 357 kB
- Podmíněnost pro lokalitu - 143 / Hutě, 3 MB
- Popis lokality MPP – 580 / Malešická průmyslová oblast, 1 MB
- Odůvodnění pro lokalitu - 580 / Malešická průmyslová oblast, 351 kB
- Podmíněnost pro lokalitu - 580 / Malešická průmyslová oblast, 842 kB
- Popis lokality MPP – 582 / Za Kyjemi, 3 MB
- Odůvodnění pro lokalitu - 582 / Za Kyjemi, 345 kB
- Popis lokality MPP – 697 / Areály Černý Most, 3 MB
- Odůvodnění pro lokalitu - 697 / Areály Černý Most, 346 kB
- Popis lokality MPP – 688 / Jahodnice rekreace, 3 MB
- Odůvodnění pro lokalitu - 688 / Jahodnice rekreace, 342 kB
- Popis lokality MPP – 722 / Kyjské skleníky, 3 MB
- Odůvodnění pro lokalitu - 722 / Kyjské skleníky, 342 kB
- Popis lokality MPP – 824 / Centrální park Černý most, 3 MB
- Odůvodnění pro lokalitu - 824 / Centrální park Černý most, 284 kB
- Popis lokality MPP – 850 / Údolí Rokytky, 953 kB
- Odůvodnění pro lokalitu - 850 / Údolí Rokytky, 286 kB
- Popis lokality MPP – 881 / Smetanka, 1 MB
- Odůvodnění pro lokalitu - 881 / Smetanka, 341 kB
- Popis lokality MPP – 901 / Kyje – Horní Počernice, 2 MB
- Odůvodnění pro lokalitu - 901 / Kyje – Horní Počernice, 344 kB
- Popis lokality MPP – 944 / Dolní Počernice – Horní Měcholupy, 2 MB
- Odůvodnění pro lokalitu - 944 / Dolní Počernice – Horní Měcholupy, 348 kB
- Popis lokality MPP – 958 / Pražský zlom, 1 MB
- Odůvodnění pro lokalitu - 958 / Pražský zlom, 343 kB
Metropolitní plán 2025 - PRAHA
Pražský Institut plánování a rozvoje (IPR) předal magistrátu návrh Metropolitního plánu. Dokument bude možné 3. 12. 2025 připomínkovat. Doporučený termín pro podání připomínek je 20. 11. 2025.
Zde je seznam významných lokalit, kterých se Metropolitní plán na území Prahy 14 týká.
Diskuzní fórum
Zatím tu není žádný diskuzní příspěvek.
